Serviços
Da elaboração do projeto à execução da obra, oferecemos todo o
suporte em um só lugar.
Há mais de 12 anos garantindo a segurança
e a conformidade do seu patrimônio.
Nossas Soluções são customizadas para alavancar o seu negócio
A Hidrativa Engenharia e Prevenção Contra Incêndio é especializada em elaboração e aprovação de projetos, venda de materiais, execução de obras e consultorias, exclusivamente na área de prevenção e combate contra incêndio.
Atuando desde 2013, somos a única empresa do Oeste do Paraná que oferece todo o suporte em prevenção de incêndios reunido na mesma empresa.
Conheça nossas soluções
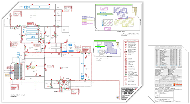
Projetos
- Elaboração de projetos de prevenção contra incêndio;
- Aprovação junto a órgãos fiscalizadores;
- Realização de acordos fiscais (TCAC).

Execução
- Sistemas Hidráulicos;
- Sistemas Elétricos;
- Sistemas de Extintores;
- Sinalização de Emergência;
- Sistemas de Compartimentação;

Venda de Materiais
Dispomos de linhas completas de produtos para sistemas de prevenção, desde medidas simples até sistemas complexos, trabalhando com toda a linha hidráulica NBR, NFPA, sistemas Wireless e UL/FM.
- Comercialização com tabelas diferenciadas para atacado, varejo, distribuidores e obras em formato global;
- Entrega de materiais em todo o território nacional;
- Mantemos estoque próprio para reduzir prazos de entrega e atender com rapidez garantias e manutenções emergenciais.

Consultorias
- Atuação como consultores para empresas, profissionais e órgãos fiscalizadores;
- Elaboração de relatórios, laudos e certificações de execuções e manutenções;
- Apoio em aprovações, fiscalizações e negociações para terceiros.

Pronto para Garantir a Segurança do seu Projeto?
Entre em contato para solicitar um orçamento ou tirar suas dúvidas.
Nossa equipe de especialistas está pronta para ajudar.
Alarme de incêndio
Sinalização de Emergência
Hidrantes
Sprinklers
Iluminação de Emergência
Extintores
Corta-Fogo
Acessórios